
黑色時尚是神秘的,是工業(yè)風的自由豁達,想把兩個結合在一起,非常舒適。黑色墻壁的天花板、薄原木地板、明裝的黑線管、纖細的黑色金屬樓梯和家具,粗獷中帶有質感。
餐 廳



▲一張桌子,六張椅子,一棵小樹,餐廳很簡單。
廚 房


▲廚房采用了全黑的設計,用暖色的光帶,在炫酷中帶來溫暖。
客 廳


衛(wèi) 生 間

▲黑色的廁所,紅色的照明,充滿熱情。
臥 室


▲主臥和主衛(wèi)被安放在兩個并排的方形箱子里。睡眠區(qū)是黑色的開放式包廂,內側和外側裝飾著光帶,床后面制作了兩個軌道的墻壁燈,簡單又酷炫。
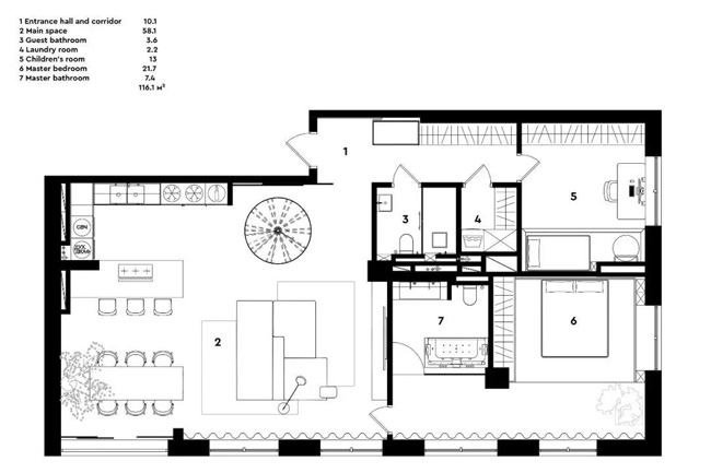
設 計 圖

上一篇:【優(yōu)秀設計作品】無錫中式風格裝修案例,雅?枯木逢春的味道
最新文章
紫蘋果聲明:
Copyright 2020 www.doctorzz.cn All Rights Reserved. 蘇ICP備18037275號-2
蘇公網安備32021302002167 上海紫蘋果裝飾有限公司無錫第一分公司版權所有
紫蘋果國際設計-品質贏得口碑